地址:北京市海淀區(qū)信息路22號1號樓B座4層4-12室 Email:info@landscape.cn
Copyright ? 2013-2022 景觀中國(www.cncwe.org)版權所有 京ICP備05068035號
京公海網安備 110108000058號

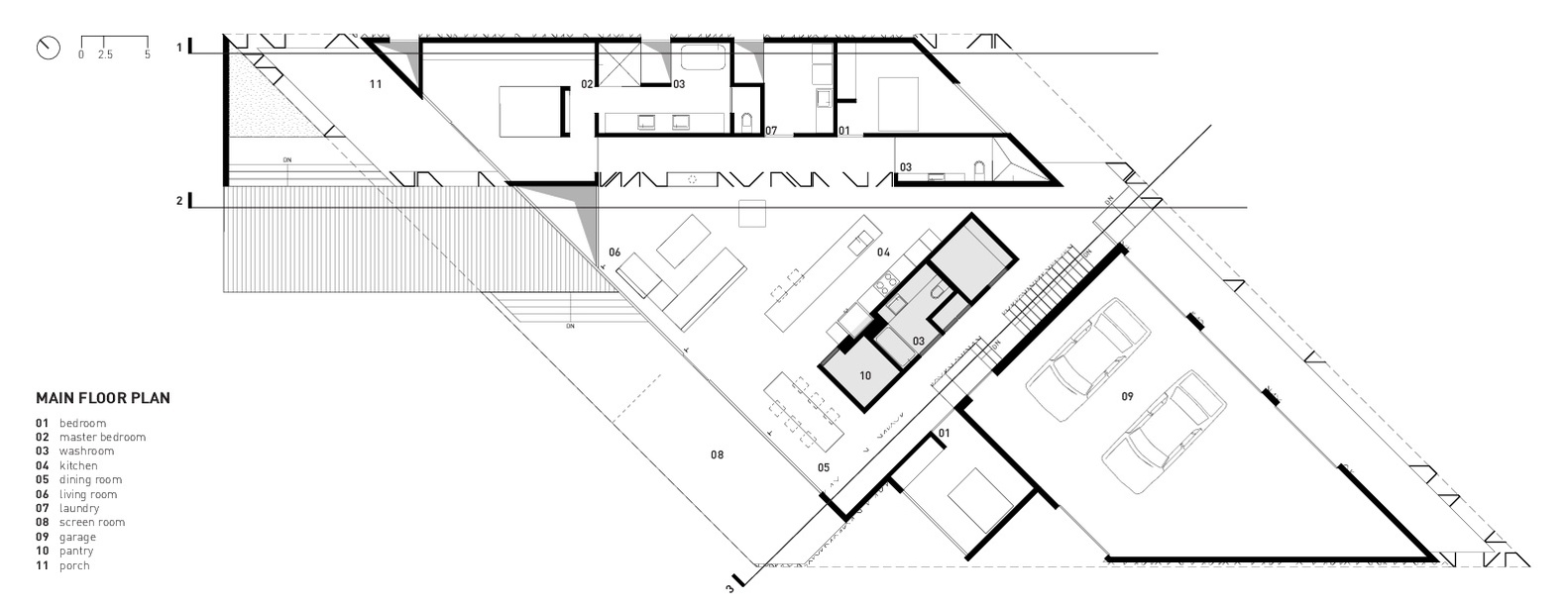
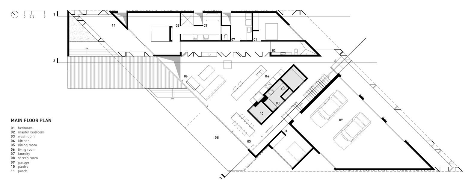
“平行四邊形之家”是一個四口之家的一處寬敞的小房子,在溫尼伯背部的東圣保羅郊區(qū)。場地在一處安靜的海灣里,周圍都是典型的郊區(qū)、灰泥外墻的住宅,這處建筑以一副樸素的面孔朝向街道。在滿是樹的后院里,有大面積的落地玻璃窗面向寬闊的庭院空間。

雖然業(yè)主更喜歡只有一層的布局,但是他們提出的關于面積和各種要求的限制,只適用于兩層的布置。通過把平面變成一個平行四邊形,增加的外部??可以在一個單一水平面上容納他們所需要的功能,方便了整個房子中的各種活動功能整合,這很適合一個有孩子的家庭。



在外部,房子的表皮是自然染色的垂直模板。由木材包裹的拱腹延伸到開放的天井和遮蔽的門廊,以完成這個平行四邊形。由一系列U型的Cor-ten鋼柱支撐,它可以將視圖屏幕顯示在私人房間里,并讓人聯(lián)想到場地中的樹木。

在內部,一個漂浮的公共盒子讓起居和交通空間自由流動,其中包含了入口壁櫥、化妝間和儲藏室。主臥的兩邊用一種白漆楓木隔障從起居空間中分隔開來,隔障將外部體量的集合形狀延伸到內部空間中。簡單而柔和的調色板、從主樓層一直延伸到地下室的一系列光井和天窗,極大地強調了內部的體量。

翻譯:楊朝
