地址:北京市海淀區(qū)信息路22號1號樓B座4層4-12室 Email:info@landscape.cn
Copyright ? 2013-2022 景觀中國(www.cncwe.org)版權所有 京ICP備05068035號
京公海網(wǎng)安備 110108000058號
在荷蘭古香古色的Den Bosch小鎮(zhèn),有一片名為Bolwoning的奇怪建筑群。Bolwoning坐落在該地區(qū)傳統(tǒng)的磚房建筑與一條蜿蜒的運河之間,由一顆顆蘑菇樣的圓球建筑組成,圓球建筑的上面還分布了一些圓形的窗以及爬藤植物,好似一片失落依舊的外星文明遺跡。
Bolwoning其實是一片住宅區(qū),建于1984年,那些高爾夫球似的建筑就是一棟棟住戶。這其實是當時由建筑師Dries Kreijkamp進行的一個實驗性建筑嘗試,希望創(chuàng)作出一種新的住宅解決方案以及一個新的居住類型學。不過如今看來,這種嘗試只不過是建筑史上的一朵小小水波而已~
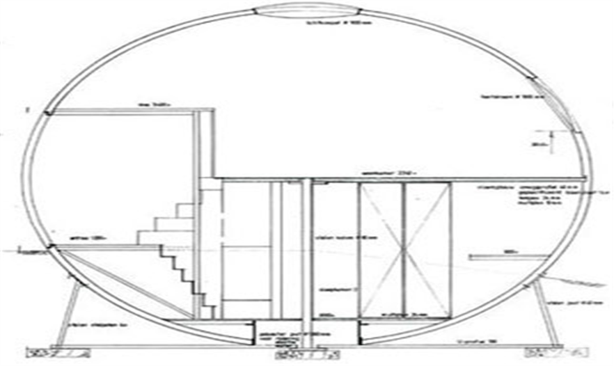
每個Bolwoning House約55㎡,由下部的類似船艙的樓梯將人引入球體中,麻雀雖小五臟俱全,從片中可看出,冰箱、洗衣、儲藏柜、衛(wèi)生間等功能一應俱全。頂部的圓形客廳可謂愜意有趣,陽光通過同樣潛水艇似的圓窗照射進來。也許住夠了四四方方一居室的單身青年,大約都會懷著一個想要體驗一把的欲望吧~













